Estate Structures

Olive Garden Estate Structures

Olive Garden Estate Structures includes:

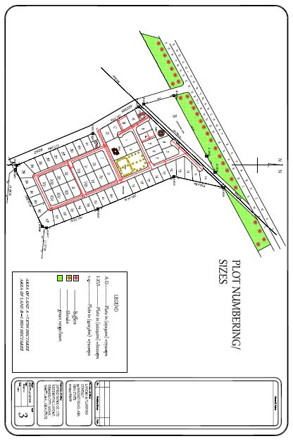
MASTER PLAN

Olive Garden Estate Structures

Click >>MASTER-PLAN<< OF Olive Garden Estate plot numbering to view in .pdf format


CONCEPT PLAN

Olive Garden Estate Structures

Click >>CONCEPT DESIGN<< to view in .pdf format


COMPLETE PLAN

Olive Garden Estate Structures

Click >>COMPLETE PLAN<< to view in .pdf format